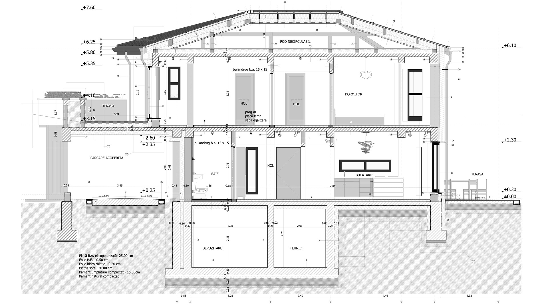
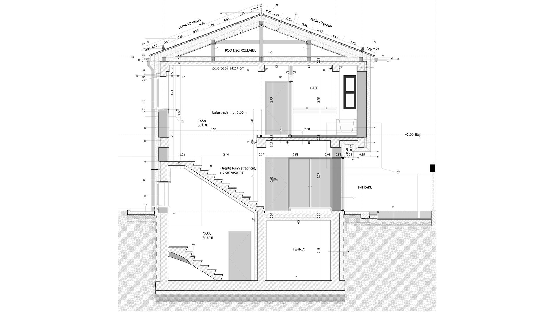
Casa cu inalt grad de eficienta energetica 2 Înapoi Anterioară Următoare Anterioară Următoare Anterioară Următoare Anterioară Următoare