









Locuință individuală
Amplasamentul se află în zona Metropolitană Iași.
Contextul urbanistic este caracterizat de prezența a două tipuri de programe de locuire – colectivă și individuală.
La nivelul invelitorii, locuintele individuale sunt caracterizate de prezența șarpantei iar locuințele colective de acoperiș terasat.
Soluția volumetrică are ca scop de a crea o tranziție între aceste tipuri de locuire, optându-se pentru realizarea unui volum simplu, acoperiș terasat cu o cromatică neutră la nivelul tuturor închiderilor.
Amplasarea construcției în cadrul parcelei este rezultatul reglementărilor urbanistice locale dar și orientarea acesteia în funcție de punctele cardinale.
Accesul se realizează pe latura de sud a proprietății.
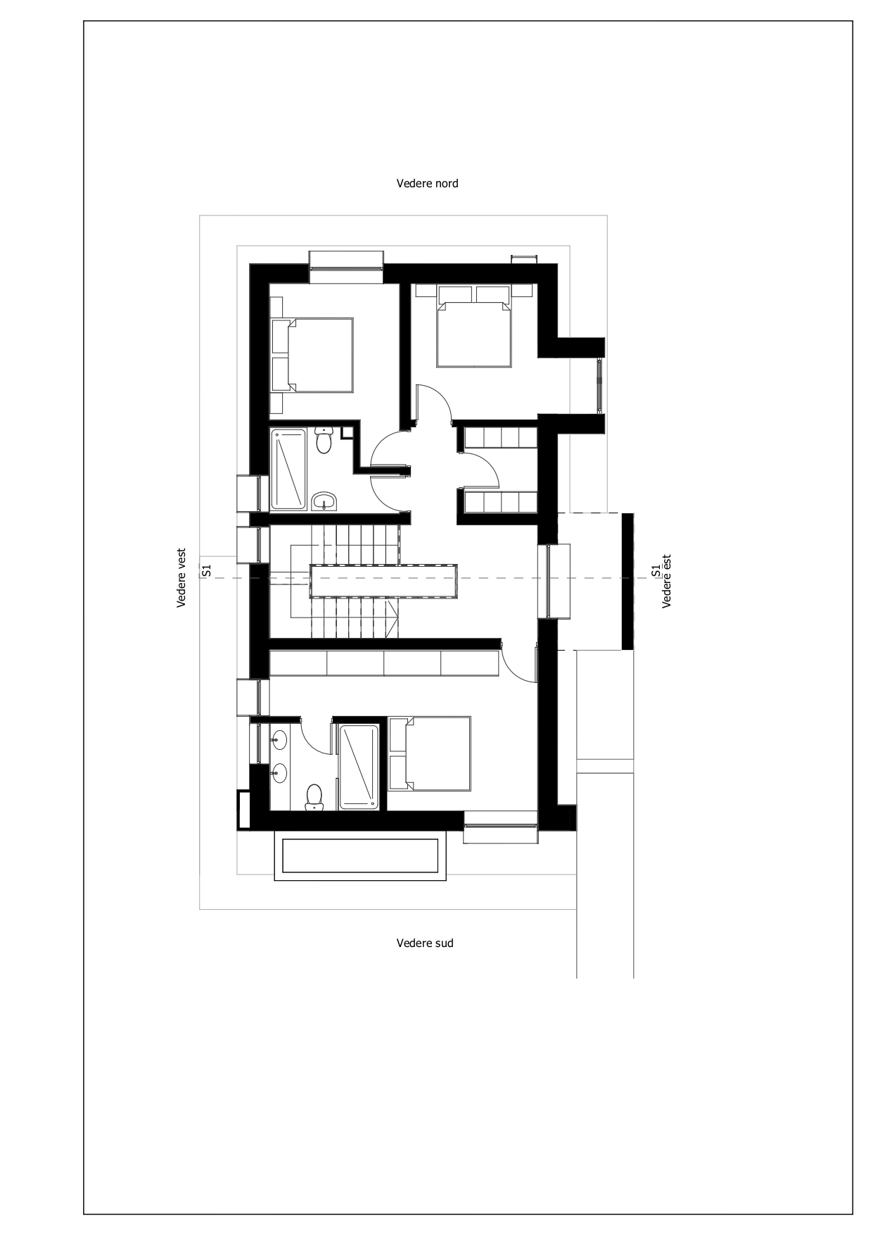
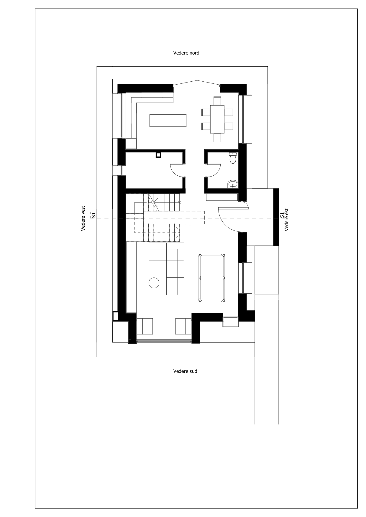
Locuința este compusă din două zone principale, zona de zi și zona de noapte.
Zona de zi este amplasata la parter iar cea de noapte la etaj. Toate functiunile pivotează în jurul unui hol central, transversal în cadul planimetriei.