Casa Husanu

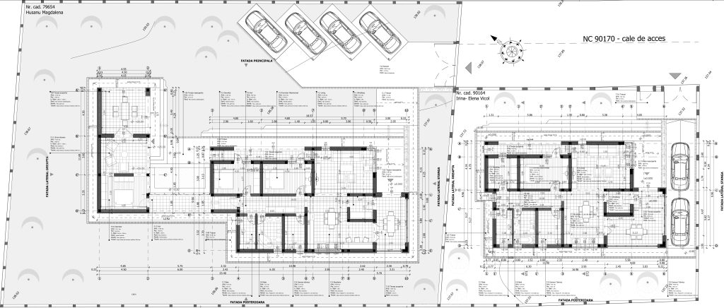
PLAN PARTER

1 Sas intrare: 4.72 mp
2. Living: 21.99 mp
3. Bucatarie+l.l.masa: 12.76 mp
4.Dormitor Matrimonial: 12.76 mp
5. Dormitor:: 12.03 mp
6. Hol: 10.29 mp
7. Gs: 4.61 mp
8 Baie: 7.13 mp
9. Tehnic: 6.34 mp

TOTAL SU: 98.64 mp

TERASA

10 Terasa acoperita: 8.48 mp
11 Terasa neacoperita: 15.19 mp
12 Terasa acoperita: 20.63 mp

TOTAL SU TERASE: 44.30 mp
TOTAL SC: 158.00 mp


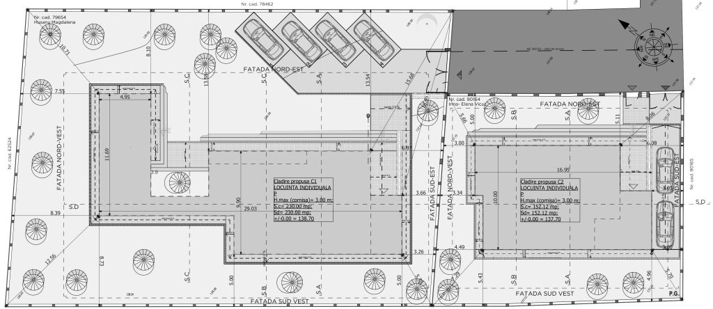
CASA HUSANU
Iasi, Romania

DATE GENERALE :
Lungime lot : 40.0 m x 28.55 m

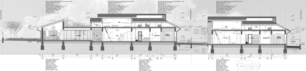
Regim de inaltime : Parter
Nr camere : 4
Inaltime cornisa : 4.50 m
Inaltime coama : 6.00 m


Arie construita: 158.00mp
Arie utila locuibila: 98.64 mp
Arie utila terase : 44.30 mp

Volum constructie : 525 mc
Incalzire: pardoseli radiante
Ventilare : mecanica

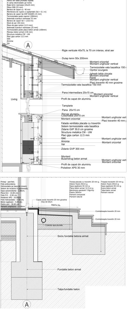
Structura de rezistenta este mixta, compusa din zidarie portanta confinata cu stalpisori, centuri din beton armat si cadre din beton armat.
Infrastructura este realizata din fundatii continue sub ziduri.
Acoperisul este de tip sarpanta, structura lemn.
Finisaje exterioare : Tencuiala decorativa RAL 9001
Placi traverin
Tabla faltuita, RAL 8022


Finisaje interioare : -pardoseli-travertin (holuri,băi,spațiu depozitare, living si loc de luat masa, terase etc);
– parchet lemn stratificat (dormitor, dressing) ;
-travertin terasa) ;
-pereți interiori – tencuiala, vopsea lavabila, travertin ;
– bucătării/ g.s. – faianță ;
– plafoane – tencuială și vopsea lavabila ;
– tămplăria interioară – PVC cu geam termopan clar sau panou – negru antracit.

Arhitectura cladirii
Constructia este realizata pentru o familie cu un copil.
Functiunile sunt organizate in functie de orientarea cardinala a amplasamentului .
Zona de zi este compusa din : living, bucatarie, loc de luat masa si grup sanitar.
Zona de noapte este compusa din : dormitor matrimonial, dormitor copil, hol cu dressing si grup sanitar.
Casa dispune de terase ample ce valorifica perspectivele favorabile ale amplasamentului.